Disposiciones del espacio

Perfectas para las discusiones iniciales de planeación del centro

Las disposiciones de espacios interactivas y de preferencia de Philips están diseñadas para ayudar a arquitectos, ingenieros y contratistas, así como también al personal de las instalaciones, a entender las implicaciones básicas de la instalación de un sistema de imágenes de Philips.

 

Aquí encontrará acceso a disposiciones de espacio descargables en formato PDF y en los casos que está disponible, en formato DWG e IRL PDF.

 

Tenga en cuenta que, aunque son muy útiles, los archivos descargables de esta sección no son específicos de un centro o idóneos para propósitos licitatorios.

Información de contacto

* Este campo es requerido

*
*
*
*
*
*
*
*
*

Al especificar su motivo de contacto podremos ofrecerle un mejor servicio.

We work with partners and distributors who may contact you about this Philips product on our behalf.

*
*

Final CEE consent

Disposiciones del espacio

Preferred room layouts

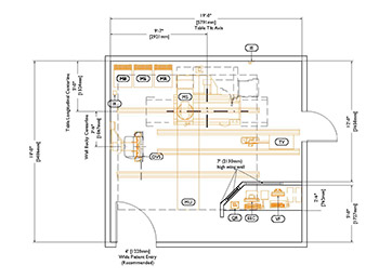
Disposiciones del espacio de preferencia


Nuestros paquetes de plano le suministrarán una mirada a:

  • tamaño preferido del espacio
  • colocación del equipo
  • pesos y tamaños generales, carga de calor


Tiene a su disposición archivos descargables en formato PDF o en formato DWG (CAD).

Disposiciones del espacio interactivas


En algunos casos puede no estar familiarizado con el equipo de imágenes que su institución piensa instalar. Nuestras disposiciones de espacio interactivas en 3D (IRL, por sus siglas en inglés para Interactive room layout) le permiten ver el equipo como se ve en una disposición de espacio estándar.

Cada IRL incluye:

  • vistas interactivas de espacio desde múltiples perspectivas
  • video ‘tutorial’ incorporado
  • requisitos generales del sistema


Tiene a su disposición archivos descargables de varios sistemas de imágenes Philips en formato IRL.

Nota: la descarga puede tomar algunos minutos debido a su tamaño.

Interactive room layouts

Soluciones para la planeación del centro

Comunidad de planeación del centro de Philips

Dirigida a arquitectos, ingenieros y contratistas (AEC), la comunidad de planeación del centro es un valioso recurso de información completa para la planeación del centro.

 

Leer ahora

You are about to visit a Philips global content page

Continue

You are about to visit a Philips global content page

Continue

Nuestro sitio se puede visualizar mejor con la última versión de Microsoft Edge, Google Chrome o Firefox.